Товары
Услуги
Компании
По сайту
Главная
Товары
Услуги
Работа
Каталог портфолио
Фото
Видео
Школа ремонта
Это интересно
Главная
/
ИП, ARThome
/
Портфолио
/
Выполненные проекты
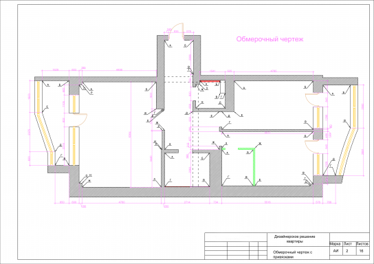
пример плана(обмерочный с привязками )
Автор:
ИП, ARThome
Добавил: 07.07.2016 08:36
Нравится
0
Tweet
Спальня
Сан.узел
Спальня
Сан.узел
гардеробная
Кухня
пример плана(обмерочны...
пример плана(расстанов...
Холл
комната для отдыха
Зона ресепшн
кухня
Спальня
гостиная-кухня
кухня
спальня
холл
кухня
Все фотографии проекта «Выполненные проекты»
Все проекты
Статьи
30.07.2021
ПЕНОПЛЭКС® СТЕНА: ТЕПЛОИЗОЛЯЦИЯ С ВЫСОКОЙ АДГЕЗИЕЙ
02.07.2021
Выгодная аренда строительных инструментов в Казахстане. Зачем и где?
Вход
Запомнить меня
Войти
Регистрация
Доска объявлений
Редактировать
Поиск
Расширенный поиск
Найти
Регистрация
Пользователь
Если Вы хотите пользоваться услугами портала
Компания
Если Вы хотите размещать информацию о товарах и Если Вы хотите размещать информацию о товарах и услугах