Товары
Услуги
Компании
По сайту
Главная
Товары
Услуги
Работа
Каталог портфолио
Фото
Видео
Школа ремонта
Это интересно
Главная
/
ЧЛ, Ольга
/
Фото наших товаров/работ с ценами
Дизайн интерьера частного 2-х этажного дома
план расстановки мебели
план потолков
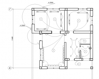
План розеток в частном доме
План расстановки мебели
План расстановки электрооборудования
Все проекты
Статьи
30.07.2021
ПЕНОПЛЭКС® СТЕНА: ТЕПЛОИЗОЛЯЦИЯ С ВЫСОКОЙ АДГЕЗИЕЙ
02.07.2021
Выгодная аренда строительных инструментов в Казахстане. Зачем и где?
Вход
Запомнить меня
Войти
Регистрация
Доска объявлений
Редактировать
Поиск
Расширенный поиск
Найти
Регистрация
Пользователь
Если Вы хотите пользоваться услугами портала
Компания
Если Вы хотите размещать информацию о товарах и Если Вы хотите размещать информацию о товарах и услугах